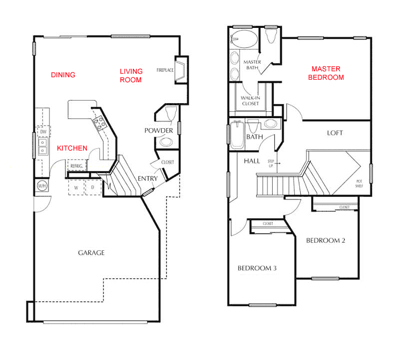
The Lassen

To view other floor plans, please click on the following: The Redwood, or The Yosemite.







147 Richmond Street
El Segundo, CA 90245
Ph: (310) 322-3268  Fax: (310) 322-3269



Living Room Dining Room Kitchen Master Bedroom